
Telluride
The Telluride is one-of-a-kind custom home blends comfort, elegance, and nature, creating the ultimate mountain getaway.

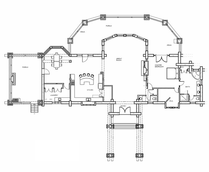
Specifications
The Telluride is an immaculate 15” Swedish Cope style log home in Angel Fire,
New Mexico that offers the ultimate in privacy. This two level fully furnished luxurious
home has 4500 square feet of living area, 1300+ square feet of covered decks nestled
on 10+ acres of secluded wooded property that borders the Angel Fire ski slopes.
The massive custom spruce log entry invites you into this magnificent mountain
hideaway. The 25 foot ceiling with elaborate trusswork and massive artisan chandeliers
greet you as you enter the living room. An enormous stone fireplace, hand crafted
posts, radiant in-floor heat make this spacious living room the perfect area for hosting
parties or family gatherings. Adjacent to the living area is a chef’s kitchen complete with
Thermador appliances. Outside, under a covered deck, is another cooking area with
granite counters, built in grill, refrigerator, heaters, television, fireplace and views all
around.
Floor to ceiling windows frame amazing snow cap scenes of Wheeler Peak, highest
mountain in NM. The hand-crafted railing will guide you down to the lower level where
you will find yourself in a spacious entertainment area with a foosball table, gas fire
place and a flat screen TV. In addition, the lower level has a master guest bedroom with
a queen size bed, bunk room with 3 full size, 3 twin size beds and two full size
bathrooms. On the lower level you will also find a ski room with private individual lockers
whenever you’re ready to hit the slopes.
Walking outside the lower level, a large stone paved patio wraps around the back of the
house. Stepping stones will lead you to a fire pit where the family can enjoy an outdoor
evening with stunning views.
This mountain escape is equipped with indoor/outdoor surround sound system to
ensure that you can listen to your favorite music anywhere. Five flat screen TV’s are
placed throughout the house and outside so you will never have to miss your favorite
TV show or game.
After a full day of skiing you have your choice of getting in the in-ground hot tub located
in the back deck while enjoying Wheeler Peak views or go inside and warm up by one
of the fireplaces. This is one of the finest homes in Angel Fire, offering the best of luxury
and privacy. Perfect for corporate retreats or family gatherings.


